ΠΡΟΣ ΠΩΛΗΣΗ: Build-to-Order Βίλα στη Φανερωμένη
Στη Φανερωμένη Δήμου Φαιστού, με ανεμπόδιστη θέα σε βουνό και θάλασσα, προσφέρεται προς πώληση project βίλας 90 τ.μ. σε οικόπεδο 300 τ.μ., τύπου μεζονέτα, που θα παραδοθεί με το κλειδί στο χέρι.
Αυτό το project υιοθετεί τη νέα τάση “build-to-order” (κατασκευή κατά παραγγελία), όπου η κατοικία ξεκινά να κατασκευάζεται μόνο όταν βρεθεί ενδιαφερόμενος αγοραστής.
Ο μελλοντικός ιδιοκτήτης έχει τη δυνατότητα:
-Επιλογής διαρρύθμισης και εσωτερικών υλικών
-Εξατομίκευσης του σχεδιασμού σύμφωνα με το προσωπικό γούστο
-Πλήρους ελέγχου του χρονοδιαγράμματος και της ποιότητας
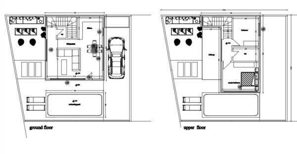
Προβλεπόμενη διαρρύθμιση:
-2 υπνοδωμάτια
-1 μπάνιο + 1 WC
-Ενιαίος χώρος καθιστικού – κουζίνας
-Ισόγειο 50 τ.μ., Όροφος 40 τ.μ.
Εξωτερικοί χώροι:
-Ιδιωτική πισίνα
-Διαμορφωμένος κήπος
-Πανοραμική θέα σε βουνό και θάλασσα
Τιμή: 350.000 €
Μια μοναδική ευκαιρία για εξοχική κατοικία ή επένδυση, συνδυάζοντας σύγχρονη αρχιτεκτονική, εξατομίκευση και απόλυτο έλεγχο στη διαδικασία κατασκευής.
Για περισσότερες πληροφορίες επικοινωνήστε μαζί μας.
Cretan Family Estate η νέα πρόταση στην αγορά ακινήτων!
Ανακαλύψτε σήμερα το ακίνητο των ονείρων σας στην Κρήτη!
Επικοινωνήστε τώρα!
Αγγελική Λενακάκη, Μεσίτρια Αστικών Συμβάσεων
📞 Τηλέφωνο: 6972 212126
📧 Email: [email protected]

FOR SALE: Build-to-Order Villa in Faneromeni, Municipality of Faistos
In Faneromeni, Municipality of Faistos, with unobstructed mountain and sea views, a build-to-order villa project is offered for sale. The property is a 90 sq.m. maisonette on a 300 sq.m. plot, to be delivered turnkey upon completion.
This project follows the growing “build-to-order” trend, where construction begins only when a buyer is confirmed.
The future owner has the opportunity to:
-Choose the layout and interior materials
-Personalize the design according to their taste
-Have full control over the construction schedule and quality
Planned Layout:
-2 bedrooms
-1 bathroom + 1 WC
-Open-plan living and kitchen area
-Ground floor 50 sq.m., First floor 40 sq.m.
Outdoor Spaces:
-Private swimming pool
-Landscaped garden
-Panoramic mountain and sea views
Price: €350,000
A unique opportunity for a holiday home or investment, combining modern architecture, customization, and full control over the construction process.
For more information, please contact us.
Cretan Family Estate, a new approach to real estate in Crete.
Discover your dream property today!
Contact now:
Aggeliki Lenakaki, Residential Real Estate Broker
Phone: +30 6972 212126
Email: [email protected]


